G van Zeeland

G van Zeeland

Bouwkundig Tekenbureau Gemert
  • Welkom
  • Over ons
  • Projecten
  • 3D presentatie
  • Contact

Vrije sector woningbouw

Wij staan klaar voor al uw bouw- en ontwerpopgaven.

Utiliteisbouw

Wij staan staat garant voor een fraai en zo passend mogelijk ontwerp en een goed eindresultaat.

Verbouwingen en uitbreidingen

Daarnaast vinden wij dat begeleiding tijdens de werkzaamheden belangrijk is om de kwaliteit te waarborgen.

Welkom bij TekenbureauGemert.nl

Wij tekenen graag uw opdracht uit!

Projecten

Bouwkundig tekenwerk t.b.v. omgevingsvergunning.
- Bouwaanvraagtekeningen.
- Werktekeningen

3D Tekening

Vooraf een juiste indruk wat het uiteindelijk gaat worden.

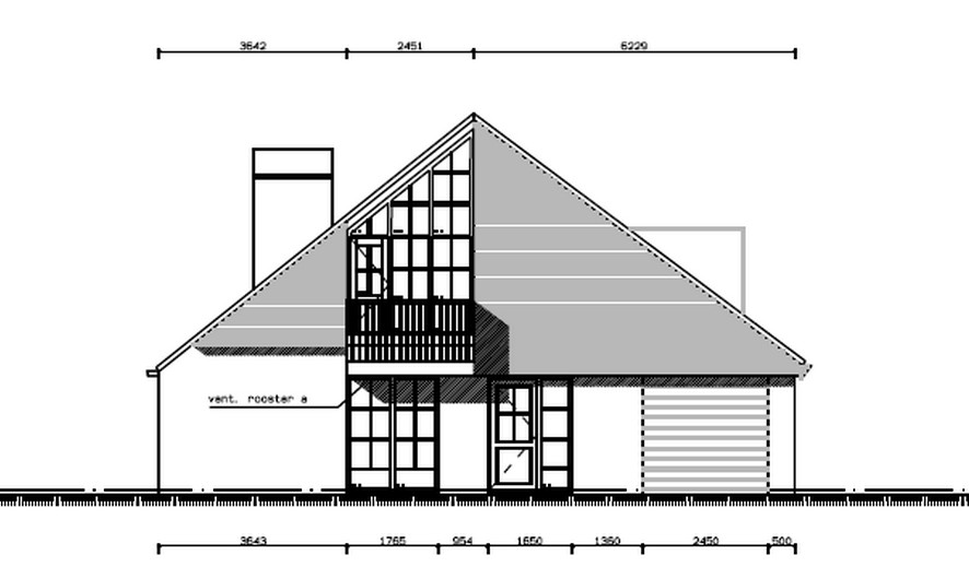
GevelSchets

Nauwkeurig en adequaat.

Achtergevel

Volgens norm.

Wat we realiseren

Gemert

Woonhuis

Gemert

Woonhuis

Gemert

Woonhuis

Contact tekenbureauGemert.nl


G. van Zeeland    -    Dr. Schaepmanstraat 34    -    5421 PK  Gemert    -    Telefoon 06 45863494    -    Email gvanzeeland@tekenbureaugemert.nl
Privacyverklaring

G. van Zeeland © Copyright